英国留学回来的她,对于设计,除了内心的那份热爱与构建美好人居的情感寄托,还有着强大的理论知识储备,也有着学院派“诗性”的思维方式,她是一个培育一批又一批新锐设计力量的大学老师,也是一名独立、果断、睿智的女boss,在与设计结缘的时光中,她收获了大批客户的肯定与信任,也收获了自己的事业与梦想。18年来她默默耕耘,不忘初衷,她就是今天的主角贵阳元禾旺景建筑设计咨询有限责任公司的创始人——王予舒涵女士。

▲王予舒涵
贵阳元禾旺景建筑设计咨询有限责任公司
创始人兼设计总监
勇于选择的人生更精彩
王予舒涵毕业于北京交通大学建筑系,大学毕业后便顺利的进入了贵州大学任教,8年的教学生涯,沉淀下来的是桃李满园的芬芳和沉静睿智的品质。2年的英国国际城市发展是硕士学习经历,再一次开阔了她的视野和格局,8年前,她选择辞去大学老师的工作,创立了贵阳元禾旺景建筑设计咨询有限责任公司,毅然投身设计行业,开始了她的创业之旅,如果说前10年是她的“积累期”,那从成立公司开始,便是她的“蜕变期”。
之所以选择创立设计公司,除了沉淀与机遇,她表示更多的还是出于内心最深沉的热爱,她觉得做设计更有意义,设计涉及到哲学、建筑,艺术地思考,可供设计师发挥的空间有很多,这也是她喜欢设计行业的一个重要原因。作为一名女性,做设计其实会很辛苦,但是她不后悔,与一成不变的人生相比,勇于选择的人生会更精彩,她坚信从事设计,更适合她。


▲王予舒涵作品
以设计结果为导向,实现美好人居
室内设计行业具有复杂性、服务周期长、需求差异化,以及高参与度、低闭合度等特点,没有行业标准,这些都会不同程度影响设计方案的最终落地,王予舒涵从事设计行业多年,她表示自己摸索出了一套管理方法,比如以结果为导向,将陈设艺术前置,与客户共同合作挑选家具,这样做能避免设计师在做效果图时的天马行空。
著名设计师威尔克说:“创作好的设计需要不卑不亢。” 设计不是谁屈从谁,无论是业主还是设计师都不应该委曲求全,王予舒涵说自己在谈客户之初,会花上至少1个小时跟客户聊天,引导客户说出心理需求,通过主导聊天这种方式,判断双方的生活方式和价值观是否能达成共识,她表示好设计不是满足所有人,只有懂得,才能让设计更有价值,同时这也是对后期方案完美落地的一个重要保障。



▲王予舒涵作品
私宅设计是专业与非专业人士的一场合作,王予舒涵认为设计师应该是一个懂生活的美学顾问,既要懂材质、懂风水、懂灯光、懂工艺,还要懂心理学、色彩学等,所以作为设计师应该时刻保持前沿的学习,只有不断地充电,做到“胸中有丘壑,腹里有乾坤”才能游刃有余地去驾驭自己的设计,才能为业主创造一个美好的人居生活。
最后她认为对于全案设计师讲,把控预算非常重要,前期要与业主详细沟通清楚需求,列出清单,做到心中有数。另外王予舒涵表示家和人一样,都需要“成长空间”,千万不要一下子做的太满,适当的“留白”也非常有必要。


▲王予舒涵作品
作品是设计师最好的“形象”代言人
优秀从来就不是一蹴而就,上帝会眷顾努力的人,“精定专精,守一不移”,多年的设计实践让设计师王予舒涵有了自己的风格,她的代表项目有首开龙樾、中铁阅山湖樾园、首开紫郡;贵州文旅大酒店、安顺-安投大厦酒店、贵阳高新国际会议中心;贵州比特思·安心匠设备公司新办公室、中国电信贵州分公司金阳枢纽楼员工餐厅等。
在她看来,好的作品一定是以结果为导向,尊重自然,具备亲和力和感染力,为人们提供美好生活方式,能与人产生情感共鸣的作品,我们可以从她的新作品《融创·九樾府》看出深藏其中的设计理念--将华丽融于低调。


▲王予舒涵作品
王予舒涵新作 | 融创·九樾府:静谧如诗的舒适生活
好设计师总有着异于常人的能力,可以将客户那些虚无缥缈的需求澄清落地,可以敏锐地捕捉到客户一家的特质与习惯,创造意想不到的幸福空间,王予舒涵便是如此。
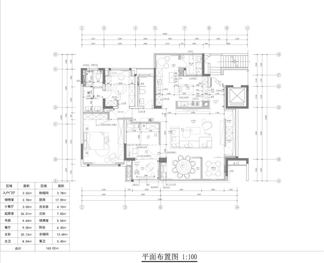
在本案这个173㎡的平层住宅项目中,王予舒涵在充分了解房主的性格和心理状态之后,摒弃了常规的形式与“奢华”,用中式的表现手法及独特、细腻的女性视角和对生活的理解,利用中国传统的包容色,让夫妇二人的家呈现了中国风的清妙细腻、优雅温婉。
隐于无形
扩大收纳空间
在这个家的设计中,设计师以“隐”为设计追求,将冗余藏于有限的空间中,欲求外在的言辞要尽可能少,而内在的意蕴要尽可能丰富。王予舒涵用传统中国的审美诠释少即是多的全球化的设计追求——“存筋藏锋,灭迹隐端”。


▲客厅
设计师用清晰与模糊的边界手法,将全屋分成了三大空间体系,公共空间、私密空间和储藏空间,三者之间有着非常清晰的边界设置——灰色墙体和门,而各空间内又极大地模糊了边界,实现开放共享。
公共空间,作为家人共享的区域,设计师采用全开放式布局,打造LDK一体化设计,通过用自由空间的方式来达到家庭成员之间互动的目的,同时也增添了空间的层次感与趣味性。

▲餐厅
储藏空间独立于起居厅的一侧,形成独立鞋帽间和其他物品储藏间,以起居厅轴线对称布局,这个设计创造了强大的收纳功能,同时让“隐”成为可能。


▲厨房
开放式的厨房在客厅一侧,以电视背景墙为界,隔而不断,界而未界,而我们可以从材料、细部和营造方式上窥见大格局的雅致风范。
厨房的灰黑木色中一抹东方赭色,搭配艺术感十足的吊灯,不落俗套且很有个性,看似简单随意,却在细节处彰显着艺术美学,而公共区域自成一线,使一家人可以一边享受烹饪一边体味互动的乐趣。


▲厨房

“嫩鹅黄”的小边柜,为全屋最黯淡的走廊空间,增添了一抹盎然的生趣。
静如人意
尊享私密时光
公共区域和私密休息区分开,休息娱乐互不干扰,互为体面。私密空间,设计师王予舒涵用一扇门与公区完全隔离,自成系统的过厅、衣帽间、卫浴和卧室区域,真正做了到会客、休息互不打扰。
王予舒涵用精致、细腻的设计,温润柔和的色彩渌波色,将卧室家具、灯光和床品,用生活化的方式组合起来,形成整体,自然光与灯光形成节奏变化,色调关系柔和、温润,简素而有韵味,能舒缓情绪,有助于房主快速入睡。

▲主卧




▲主卧衣帽间
衣帽间不仅是存放衣物鞋包的空间,更是房主品位与审美的集中体现,设计师将衣帽间与卧室结合,不仅方便,还能让这个步入式衣帽间享有充足的采光和舒爽的通风效果。

▲主卫

▲次卫

▲平面布置图
编者后记:
社会的进步带来人们对美好生活环境的更高要求与期盼,而贵阳作为中国宜居的城市,设计土壤非常好,大家有种悠然自得的状态,这种状态是一线城市所不具备的,这也恰给设计从业者提供更多发展土壤,相信未来的贵阳,也会因如王予舒涵这般痴迷于设计的人群,变得更加宜居更加美好。